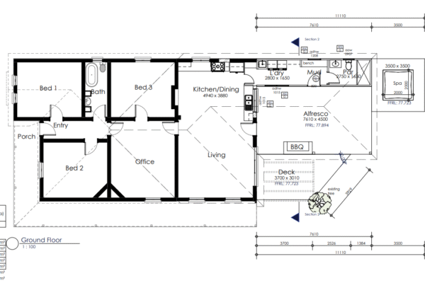
The Elderslie Residential Project is currently under construction, with works focused on extending internal living areas and creating new outdoor spaces to enhance day-to-day living. Our team managed the design coordination and planning approval process on behalf of the client and is now delivering the full construction works.
Luker St Elderslie
Proposed Developments:
Residential Alterations & Additions
Residential Alterations & Additions
Building Size:
108 sqm
108 sqm
Location:
Elderslie NSW 2570
Elderslie NSW 2570
Site Size:
765 sqm
765 sqm
READY TO BUILD YOUR FUTURE?
LJS Constructions can personally support you through every phase, from initial inspiration to the finished product. Let’s work together to bring your vision to life.


